Reiheneckhaus 80687 München - Agricolaplatz 8 Lage: Das 2025 teilweise renovierte Reiheneckhaus befindet sich in ruhiger und zentraler Wohnlage. Die Anbindung an den öffentlichen Verkehr erfolgt durch die nahegelegene Tramstation (Agnes-Bernauer- Platz) oder Busstation (Willibaldplatz), als Zubringer zur U-/S-Bahn. Alle Geschäfte für den täglichen Bedarf, Ärzte, Banken und Schulen sind in der Nähe. Das Westbad und der Landschaftspark West mit der Städtischen Baumschule Laim sind fußläufig in wenigen Minuten zu erreichen. Wohnfläche: ca. 92 m² Ausstattung: Fliesenboden im Windfang; Gäste-WC; Dielenboden im Treppenhaus; Parkettboden im der Küche und Wohnzimmer; Bad mit Badewanne im OG; Dielenboden neu abgeschliffen und geölt im kompletten OG; Waschmaschinenanschluss im Keller mit Waschbecken, Dusche und Ausgang zum Garten; Gasheizung; Einbauküche mit Ober- und Unterschränken, Spüle, Herd, Ceranfeld und Kühl-/Gefrierkombination soll für € 1900,-- abgelöst werden; Miete: 1.700,-- + Garage 100,-- + NK-Vz. 100,-- (gesamt 1.900,--) Die Kosten für Strom, Gas und Wasser werden vom Mieter direkt mit dem Versorger abgerechnet. Kaution: 5.400,-- in Bar oder per Überweisung, zahlbar zu Beginn des Mietverhältnisses bzw. bei Übergabe der Wohnung Mietdauer: ab 01.01.2026 Besichtigung: nach telefonischer Absprache mit Ritt-Immobilien, Tel.: 089/71909989 oder 0177/4110804 Sonstiges: Das Haus wurde 2025 teilweise renoviert und der Dachboden wurde gedämmt. Der Endenergiebedarf des Gebäudes beträgt 372,4 kWh/(m².a). Der wesentliche Energieträger ist Erdgas E. Hinweis: Alle Angaben erfolgen ohne Gewähr, da sie aufgrund Angaben Dritter gegeben werden. Im Übrigen erbringen wir die Maklerleistung auf der Grundlage unserer Geschäftsbedingungen, in denen Sie auch die Widerrufsbelehrung finden. Wir bitten diese zu beachten.
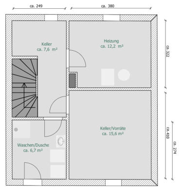
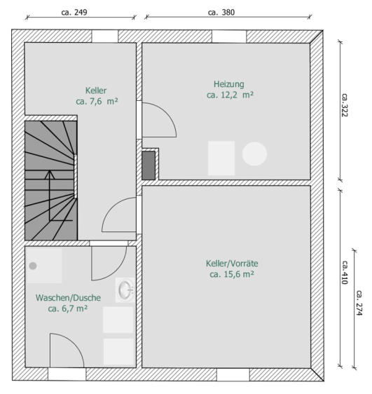
Grundrissskizze KG
copyright by Ritt Immobilien, Roland Ritt
Ritt Immobilien Ginsterweg 5 a Tel.: 089/71909989 Handy: 0177/4110804 Email: info@ritt-immobilien.de 81377 München Fax: 089/71909987 Handy: 0159/01358146
Grundrissskizze EG
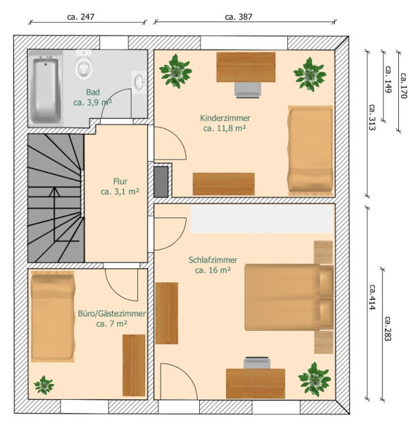
Grundrissskizze OG
Ritt Immobilien Ginsterweg 5 a Tel.: 089/71909989 Handy: 0177/4110804 Email: info@ritt-immobilien.de 81377 München Fax: 089/71909987 Handy: 0159/01358146
copyright by Ritt Immobilien, Roland Ritt
Reiheneckhaus 80687 München - Agricolaplatz 8 Lage: Das 2025 teilweise renovierte Reiheneckhaus befindet sich in ruhiger und zentraler Wohnlage. Die Anbindung an den öffentlichen Verkehr erfolgt durch die nahegelegene Tramstation (Agnes-Bernauer-Platz) oder Busstation (Willibaldplatz), als Zubringer zur U-/S-Bahn. Alle Geschäfte für den täglichen Bedarf, Ärzte, Banken und Schulen sind in der Nähe. Das Westbad und der Landschaftspark West mit der Städtischen Baumschule Laim sind fußläufig in wenigen Minuten zu erreichen. Wohnfläche: ca. 92 m² Ausstattung: Fliesenboden im Windfang; Gäste-WC; Dielenboden im Treppenhaus; Parkettboden im der Küche und Wohnzimmer; Bad mit Badewanne im OG; Dielenboden neu abgeschliffen und geölt im kompletten OG; Waschmaschinenanschluss im Keller mit Waschbecken, Dusche und Ausgang zum Garten; Gasheizung; Einbauküche mit Ober- und Unterschränken, Spüle, Herd, Ceranfeld und Kühl-/Gefrierkombination soll für € 1900,-- abgelöst werden; Miete: 1.700,-- + Garage 100,-- + NK-Vz. 100,-- (gesamt 1.900,--) Die Kosten für Strom, Gas und Wasser werden vom Mieter direkt mit dem Versorger abgerechnet. Kaution: 5.400,-- in Bar oder per Überweisung, zahlbar zu Beginn des Mietverhältnisses bzw. bei Übergabe der Wohnung Mietdauer: ab 01.01.2026 Besichtigung: nach telefonischer Absprache mit Ritt-Immobilien, Tel.: 089/71909989 oder 0177/4110804 Sonstiges: Das Haus wurde 2025 teilweise renoviert und der Dachboden wurde gedämmt. Der Endenergiebedarf des Gebäudes beträgt 372,4 kWh/(m².a). Der wesentliche Energieträger ist Erdgas E. Hinweis: Alle Angaben erfolgen ohne Gewähr, da sie aufgrund Angaben Dritter gegeben werden. Im Übrigen erbringen wir die Maklerleistung auf der Grundlage unserer Geschäftsbedingungen, in denen Sie auch die Widerrufsbelehrung finden. Wir bitten diese zu beachten.
Grundrissskizze KG
Grundrissskizze EG
Grundrissskizze OG